417.000

Salveaza Proprietatea

Casă cu stil, nouă și la cheie, cu o curte superbă, zona parc Puskin

Există case care se construiesc corect. Și există case care se simt corect din prima clipă.

Această proprietate este una dintre acele reședințe rare care conving natural prin soliditate, echilibru, confort și atenția reală acordată detaliilor. O casă care nu încearcă să impresioneze strident, ci convinge firesc, prin calitate, armonie și prin acel sentiment clar că în spatele imaginii frumoase există investiții reale, făcute cu cap.

Finalizată în 2016, casa îmbină un corp vechi refăcut serios cu un corp nou construit solid. Imobilul a fost asa de bine intretinut incat arata CA NOU NOUT!

Zona de birou, sufragerie și bucătărie aparține corpului vechi, care a beneficiat de subzidire, a fost decopertat complet până la cărămidă și refăcut.
Restul casei este nou, iar tot etajul face parte din corpul nou.
Construcția nouă este realizată din cărămidă Porotherm, cu termoizolație exterioară din vată minerală, plus încă un strat de cărămidă normală.
Pe corpul vechi s-a făcut termoizolație exterioară cu polistiren de 15 cm.

Fațada este finisată cu vopsea decorativă siliconică premium, cu proprietăți de autocurățare – o alegere elegantă și practică, ce își păstrează aspectul curat în timp, cu întreținere minimă.
Toate aceste detalii înseamnă, pentru viitorul proprietar, un plus real de confort termic, eficiență și liniștea că investiția este una solidă, nu doar frumos prezentată.

Casa are orientare est-vest: fața spre răsărit, spatele spre apus.
Acoperișul este înclinat spre spate, ceea ce oferă potențial foarte bun pentru montarea panourilor fotovoltaice.

În plus, spațiile laterale dintre case permit o ventilare naturală bună, deci un ambient mai plăcut și mai sănătos în interior.

Interiorul confirmă nivelul investiției:
-glafuri din marmură naturală la interior și exterior
-rulouri exterioare din aluminiu, pentru confort termic și intimitate
-uși interioare din lemn, realizate pe comandă
-balustrade din fier forjat la scară și balcon
-centrală termică și calorifere în toate camerele

În majoritatea camerelor s-au folosit vată minerală și rigips.
Camera din față de la etaj nu are această soluție.

Mobilierul de bucătărie și dressingul, realizate la comandă, sunt incluse în preț.
Restul mobilierului se poate negocia separat, în afara prețului casei.

Obiectele sanitare sunt de calitate superioară, iar robineții din băi și bucătărie sunt premium, în varianta albă.
Măștile cu chiuvetă din băi sunt din lemn.
Finisajele sunt atent alese, într-un stil clasic, echilibrat și absolut decomandat, iar întreaga casă transmite senzația de proprietate bine gândită, practică și elegantă în același timp.

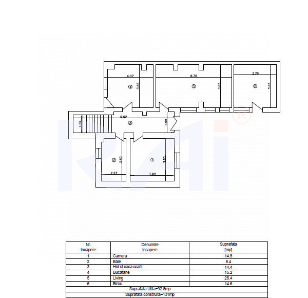
Casa este dispusă pe parter și etaj, având:
-170 mp utili
-amprentă la sol de 131 mp
-4 dormitoare
-un birou
-2 băi
-bucătărie
-living
-beci
Un detaliu foarte valoros este forma elegantă de L, care valorifică excelent curtea și deschiderea de 12,45 metri.

Un alt avantaj rar întâlnit:
-un birou cu acces direct din curte, ideal pentru profesii liberale, pentru lucru de acasă sau pentru cei care își doresc separarea clară dintre viața profesională și cea de familie

🌿 Curtea – un spațiu gândit pentru viață
Terenul total are 326 mp, dintre care 197 mp sunt teren liber, foarte bine compartimentat:
-în față: spațiu generos pentru parcare și organizare
-în spate: o zonă amenajată cu foișor și pomi fructiferi, un adevărat refugiu pentru serile de vară, momentele de liniște sau întâlnirile relaxate cu prietenii
Aici nu cumperi doar o casă, ci și un spațiu real pentru relaxare, intimitate și timp de calitate petrecut acasă.

Dotări suplimentare care cresc confortul și siguranța:
-sistem de camere video
-alarmă conectată la dispecerat
-gard și scări placate cu cărămidă decorativă tip klinker
-pavaje de calitate în față și în spate

📍 Poziție excelentă – timp câștigat zilnic
Localizarea completează perfect valoarea casei -6 minute cu masina până în centrul Craiovei

💰 Despre preț – o perspectivă lucidă
Privită cu realism, această proprietate oferă o comparație foarte clară pentru cei obișnuiți să analizeze atent înainte de a decide.
La nivel de investiție, proprietatea poate fi comparată cu un apartament nou de aproximativ 170 mp utili.
Diferența esențială este însă una de calitate a vieții, nu doar de metri pătrați.
Aici, acest „apartament” este:
-așezat pe pământ, nu între vecini deasupra și dedesubt
-lipsit de zgomotul, stresul și compromisurile traiului colectiv
-complet decomandat, cu intimitate reală și acces direct în curte
În plus, cumpărătorul primește un bonus imposibil de replicat într-un bloc:
-aproximativ 200 mp de curte liberă, un spațiu privat care nu intră în calculul prețului pe metru pătrat, dar care adaugă enorm la valoarea reală a proprietății
Curtea devine extensia naturală a locuinței: un loc pentru respirație, liniște, seri de vară, intimitate și libertate – lucruri care, la acest nivel, nu mai sunt un moft, ci o necesitate.
Preț: 417.000 €

Un preț corect, justificat și matur, pentru cei care înțeleg diferența dintre a locui… și a trăi. (Dupa data de 1 mai 2023 pretul imobilului se va majora cu 5%)

Detaliile proprietatii

Preț : 417.000
Tip : casa / vila
Suprafata Teren : 328.00
Status : vanzare
Suprafata : 170.00 MP
Oraș : Craiova
Adresa : SPANIA
Property ID : 400542

Structură Internă

Băi : 2
Camere : 6

Caracteristici

Features
Curent
Apa
Canalizare
Gaz
Telefon
Fibra optica
Centrala proprie
Centrala imobil
Aer conditionat
Pivnita

Harta

Valeriu Onescu
Îmi dau consimțământul ca acest site să colecteze și să prelucreze numele, adresa de e-mail și numărul meu de telefon în conformitate cu politica de confidențialitate

Compare Listings

Title Price Status Type Area Purpose Bedrooms Bathrooms